Structural Drawings Cyprus
Structural Drawings & Construction Plans Cyprus - ETEK Engineer
Comprehensive structural drawings that minimize ambiguities and ensure smooth construction. We provide structural drawings and construction plans services in Nicosia, Limassol, Larnaca, Paphos, Paralimni, Famagusta and in general throughout Cyprus!
ETEK Certified Structural Engineer Cyprus
Papagiannis Structural Engineers is ETEK certified with over 15 years of experience in structural engineering throughout Cyprus. Theodoros Papagiannis was the lead engineer for the landmark Asteroid project, an 80-meter, 16-story high-rise in Nicosia. We serve clients throughout Cyprus, including Nicosia, Limassol, Larnaca, Paphos, Paralimni and Famagusta. All our projects comply with Eurocodes and Cyprus Building Regulations.
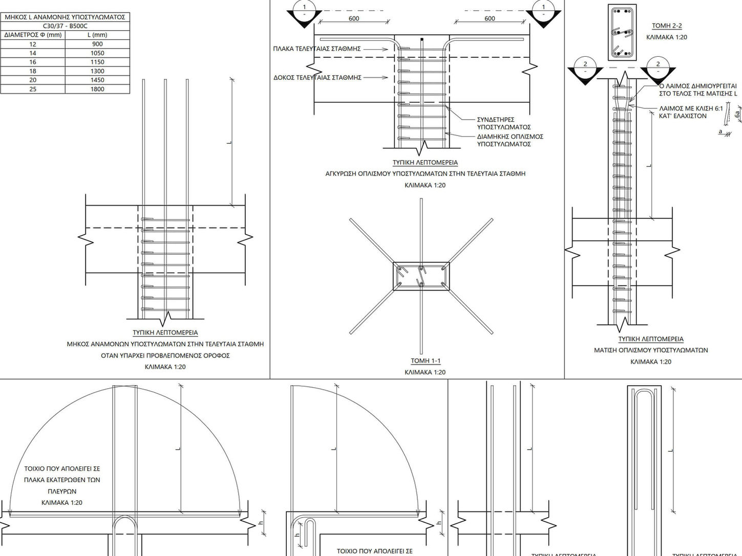
PR 2428 - Reinforced Concrete Structural Drawings
PR 2416 - Structural Steel Drawings
What we Provide
-
Foundation plans and details
-
Structural framing plans
-
Reinforcement drawings
-
Steel fabrication drawings
-
Connection details
Quality Standards
-
CAD-based precision drawings
-
Industry-standard symbols and notations
-
Clear dimensioning and annotations
-
Coordinated with architectural plans
-
Regular quality reviews
Benefits
-
Reduced construction delays
-
Minimized change orders
-
Clear contractor communication
-
Accurate quantity takeoffs
-
Enhanced project coordination
Related Engineering Services
Ensure accurate construction with our comprehensive structural engineering services in Nicosia, Limassol, Larnaca, Paphos, Paralimni, Famagusta and in general throughout Cyprus!
-
Structural Analysis & Design - Complete design development that informs detailed drawing creation
-
Building Assessment & Retrofitting - Assessment drawings and retrofitting construction documentation
-
Steel Connections Design - Specialized connection details and shop drawing coordination
-
Value Engineering - Drawing optimization to reduce construction costs and material waste
-
Quality Site Inspections - Verify that construction matches approved drawings and specifications
















